Maison + Terrain à Acqueville lot 7
Acqueville - Résidence « de la Vallée » – Lot 7
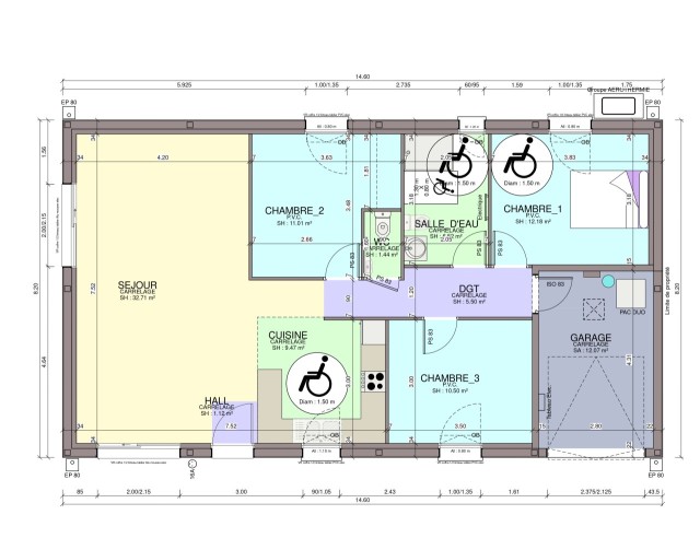
Maison neuve T4 de plain-pied – 90 m² habitables
Intérieur : entrée, séjour-salon avec cuisine ouverte de 44 m² exposé Sud-Ouest, trois chambres, salle d’eau et WC séparés.
Garage de 12m2
Extérieur : un terrain de 375 m², livré avec remise en forme des terres.
Les finitions comprennent le logement hors peintures et hors sols dans les chambres.
✔️ Construction neuve conforme à la norme RE 2020
✔️ Isolation thermique pour un confort optimal et des économies d’énergie
✔️ Maison de plain-pied lumineuse et fonctionnelle
Prix de vente : 257800 € TTC (net vendeur)
👉 Frais de notaire estimés : ≈ 6 700 €
Prix incluant le terrain et la maison, hors frais de notaire.
🔻 Visuel non contractuel
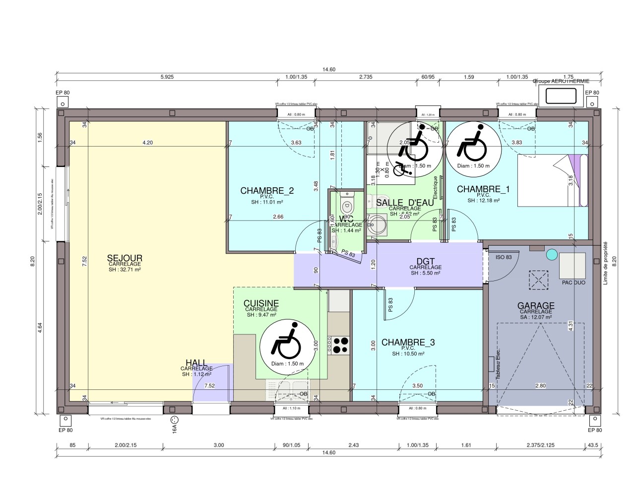
Maison neuve T4 de plain-pied – 90 m² habitables
Intérieur : entrée, séjour-salon avec cuisine ouverte de 44 m² exposé Sud-Ouest, trois chambres, salle d’eau et WC séparés.
Garage de 12m2
Extérieur : un terrain de 375 m², livré avec remise en forme des terres.
Les finitions comprennent le logement hors peintures et hors sols dans les chambres.
✔️ Construction neuve conforme à la norme RE 2020
✔️ Isolation thermique pour un confort optimal et des économies d’énergie
✔️ Maison de plain-pied lumineuse et fonctionnelle
Prix de vente : 257800 € TTC (net vendeur)
👉 Frais de notaire estimés : ≈ 6 700 €
Prix incluant le terrain et la maison, hors frais de notaire.
🔻 Visuel non contractuel